【3D掃描應用】利用3D掃描和CAD模擬幫客戶修復SAG研磨機 - SHINING 3D X ATEGROUP
3D掃描用於模擬分析是現代加速逆向工程、迭代設計和其他與CAD相關的應用的高效方法,在工業維護和修復中,準確的測量對於解決設備故障和提高運營效率非常重要,像FreeScan UE 11這樣的計量3D掃描儀在這些情況下是理想的工具,因為它們可以在最短的時間內捕獲準確、精確的3D數據。
ATEGROUP是如何使用FreeScan UE 11 3D掃描器來修復一個磨粉機的零部件?一起來看看他們的案例分享!
問題 : 損壞的輪轂
ATEGROUP的客戶在其價值鏈中使用SAG磨機來研磨材料。為了保持客戶的匿名性,並未透露太多細節,但顯然,材料的準備始終是生產的關鍵部分。材料的質量為產品的質量奠定了基礎。
而客戶發現他們的SAG磨機損壞了;在研磨過程中,材料從機器中洩漏出來。他們很快發現機器的進料和出料輪轂,負責材料轉移的重要部件已經裂開。

由於材料外洩,團隊面臨著嚴重的問題。這不僅關乎運營效率,還關乎員工的安全。
解決方案
為了修復輪轂,客戶選擇了ATEGROUP,這是一家提供3D掃描和逆向工程服務的哥倫比亞公司。他們利用一系列SHINING 3D掃描儀提供這些服務。
ATEGROUP為該項目設定了兩個目標:
1. 確定最適合加固輪轂的技術
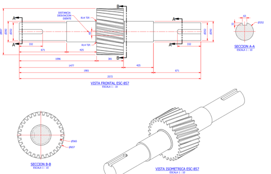
2. 生成輪轂和驅動裝置的精準的2D圖檔
I. 3D掃描
首先,ATEGROUP對SAG磨機的零部件進行了3D掃描。對於約2.5米到3米左右的大部件,3D掃描儀的便攜性和速度很重要。團隊能夠輕鬆地使用輕便的FreeScan UE 11在整個磨機周圍進行3D掃描。

然後,在磨機的金屬表面上放置標記後,團隊迅速使用掃描儀捕獲了額外的數據。FreeScan UE 11項目11條交叉的雷射線,以每秒1.35M個點的速度捕捉數據。
II. 逆向工程
根據前一步獲得的3D點雲,團隊隨後進行了逆向工程階段。他們處理了掃描數據,並使用Geomagic Design X提取了所需的測量和幾何形狀。

ATEGROUP在數字3D環境中精心重建了零件:3D掃描進行模擬分析後CAD軟體中的零件
III. 模擬分析
最後,ATEGROUP的工程師使用基於掃描的CAD模型進行了模擬分析,以確定最佳的修復方案。通過他們的模擬軟體,他們複製了運行條件並對數位輪轂施加了應力因素,這樣他們就可以分析不同情境下每個零件的行為,評估潛在的故障點,並確定最有效的修復方法。


軟體中用於模擬分析的3D掃描視圖
結果
通過FreeScan UE 11,ATEGROUP在逆向工程和模擬分析後能夠實現兩個目標:
1. 提出了最有效和堅固的輪轂修復方案
2. 為後續生產提供了準確的零部件2D圖檔
對於第一點,團隊建議使用A36鋼襯板。這為解決外漏問題提供了正確的結構支持,詳細而準確的2D圖檔使客戶能夠確保零部件的正確製作;與手動測量和繪圖相比,它為客戶節省了大量的時間和資源。


有了 3D 掃描和合適的軟體,工程師只需點幾下就能生成 2D 圖檔,就可以有更多時間做其他更有效益的案子
數位模擬是為工業零部件和機器提供持久堅固修復的有效方法。而要精確模擬需要精確的3D數據。
用FreeScan UE 11 3D掃描器來捕捉SAG磨機搭配計量級數據。ATEGROUP能夠迅速找到了最適合客戶的解決方案、解決關鍵問題、恢復生產並確保員工的安全。
SHINING 3D的精確且便攜的3D測量解決方案可以幫助您簡化維護和修復過程。
- 聯繫我們 -
了解哪種3D掃描儀能滿足您的需求。